65 Binscarth Road - ROSEDALE
These people like their chess!
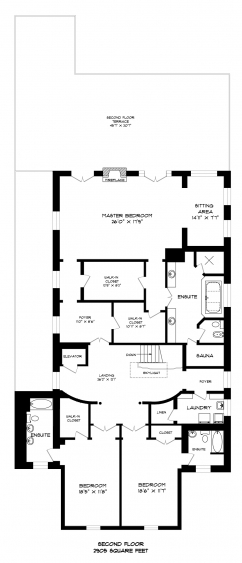
This house is definitely not my style. It is only 3 bedrooms but 6 bathrooms, and even though it sits on a 50 x 437.92 foot lot, it is probably 2, if not 3, million dollars over priced! It is listed at $8,384,000.
It is an impressive house when you get inside but I am not crazy about the front at all. Inside is full of orange marble that I am not crazy about. Perhaps without the orange curtains and orange dining room, it could look a little more subtle but the dining room floor is still marble. I am not crazy about that.
I am also not crazy about the kitchen. There are 2 entrances to the kitchen but the one that would probably get used the most goes right through the living room. The bedrooms are HUGE but I guess that is why there are only 3 of them! That is NOT a plus. And the washrooms......
This lot may be amazing but the house itself is for a very specific buyer. It is unique and won't appeal to a lot of people unlike the house at 2 Castle Frank that just sold for $6.6MM.
This is a $5.8 house at the most, unless they are able to find that specific buyer. Right now, that might be tough.
