SOLD - 38 Gibson Avenue - SUMMERHILL
This is a 4+1 bedroom (or 3+2 as it is set up now), 5 bathroom house on an 18.34 x 88.42 foot lot at 38 Gibson Avenue in Summerhill.
But this house isn't move-in ready because according to the listing...
Blank Canvas Space.
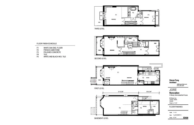
The Hard Work Is Done- Permits, 3 Storey Addition With Extended And Dug Out 9 Ft Basement, New Electrical, New Copper Plumbing With Cast Iron Stack, Framing Ready For Drywall, New Weeping Tile, Bsmt Flr Heating, New "Custom Divided' Windows, Exterior Cement Work & 3 New Balconies & Front Porch, Repointed Brickwork & Chimney, Front Slate Roof.2 Car Park W.Permit To Build Garage.
And the listing comes with 32 pages of plans and elevations done by architect, Steven Fong of Steven Fong Architects...
The same architect behind the conversion of the leaning house at 312 Gladstone Avenue...
To what currently exists at 312 Gladstone...
(Did that place every sell?)
And according to the plans for this house, it too is set to have white oak floors, but no glass railings and no boat race island...
But how long have they been working on this place!?!
From the streetview, it looks like constuction started in 2007...
They could have renovated almost every house on the street in that time!
Including the move-in ready house on the slightly larger 19.5 x 88.5 foot lot down the street at 46 Gibson Avenue...
That was listed at $1,995,000 and sold for $1,895,000 in February.
This house that will probably need at least another several hundred thousand dollars of work to complete was listed at $1,899,000.
It sold in 6 days...
For $2,000,000.

